|
Locations
Equipment
Training
Procedures
Contact
Home |
The OUHSC Vision LAICore is located at two sites on the
OUHSC campus.
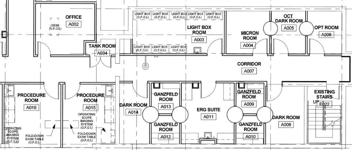
Site 1: DMEI Animal Research Facility: Vision
Analysis Wing
The LAI-DMEI currently has 3 ERGs, 1 Micron IV,
1 OKT (OPT in the map below), and 1 OCT operational at this time. See
Equipment for details. Workstations with analysis software are
set up on computers outside the darkrooms.
Environmental housing includes: Dim/bright
rearing (Light Box Room), oxygen chambers (Light Box Room), full
darkness rearing and humidity chambers (down the main ARF hall past the
procedure room).
- PLEASE KEEP THESE ROOMS CLEAN!

Site 2: BioMedical Sciences Building
The LAI-BMSB is housed on the 1st and 7th
floors of BMSB.
- The only access into the LAI-BMSB Core on
both floors will be the animal research facility (ARF) elevator (see
diagram below).
- Animals taken outside the Core rooms
on either floor may not return to the Core. Traffic patterns
and door locks are such that once personnel (and animals) exit a
Core room into a hallway, they cannot return to the Core. Traffic
patterns exist to prevent contamination in the Core rooms and the ARF.
- Full PPE must be worn when
transporting animals to and from the Core rooms and when working in
the Core rooms. No exceptions. PPEs are provided in 148 and 748. Discard
your PPEs when you return your animals/cages to the ARF.
- PLEASE KEEP THESE ROOMS CLEAN!

LAI-BMSB 1st FLOOR CORE
Access to these rooms will be through
the ARF elevator only. Traffic will exit the ARF elevator into
Room 148. Rooms 148A and 146 will house the Micron III, OCT, Optomotry equipment,
and an operating microscope. Room 146 is a dark room. All doors
indicating entrance into these rooms will be locked from the inside and cannot be accessed from the hall leading to the
underground tunnel. |

LAI-BMSB 7th FLOOR CORE
Access to these rooms will be through
the ARF elevator only, unless otherwise approved. Traffic will exit Elevator 6 into Room
748. Rooms 748A and 726 will have normal lighting. Rooms
728 and 724 will be dark for ERGs and dark adapting
animals. Room 748B will house the OIR chambers. All doors indicating entrance into these rooms will be
locked from the inside and cannot be accessed from the
hallways. |
|